
Полина Черняк создала интерьер бутика российского бренда купальников Katishalikeit. Изделия марки выделяются за счет необычных цветов, материалов и лекал — именно эта стилистика послужила отправной точкой оформления. Дизайнерам предстояло отразить ценности заказчика и реализовать все задуманные решения в точном соответствии с визуализациями.
- Локация: Москва
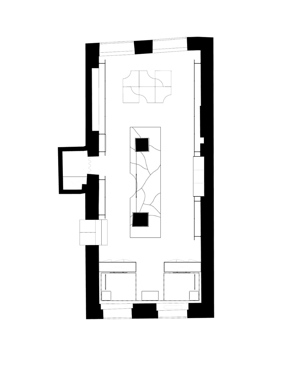
- Площадь: 65 м²
- Автор: Полина Черняк
- Фото: Варвара Топленникова
Так как объект был небольшим, команда обошлась без возведения новых перегородок. Разграничить функциональные блоки призваны мебельные конструкции. Они помогли выделить центральную зону с доминантой в виде парящего стола со сварными швами, который обыгрывает колонны. Чтобы яркие купальники бренда, современный интерьер и исторический особняк, в котором расположен магазин, работали как единое целое, дизайнер не стала полностью зашивать потолок. Система подвесных рейлов с основной развеской визуально поддерживает консоль из нержавеющей стали, встроенную в уже существующую нишу. Компактное хранение, заменяющее полноценный склад, решено за счет симметричных зеркальных шкафов. Большинство элементов в проекте получились «парящими»: даже примерочные выполнены по принципу шатра и подвешены на тросы. Без освещения скульптурные объемы не смотрелись бы так эффектно, поэтому Полина Черняк разработала систему из сорока шести LED-светильников, отражения которых складываются в динамические рисунки и позволяют создавать адаптивные сценарии. Все предметы, кроме технического света, созданы по индивидуальным эскизам.









Источник: design-mate.ru