
Интерьер этой комфортной семейной квартиры сочетает архитектурный взгляд Елизаветы Райгородской и Александра Плутякова с технологичными новинками. Все элементы дизайн-проекта задумывались так, чтобы соответствовать стилю жизни заказчиков. Обволакивающее оформление с контрастами из дерева, камня и графита должно было отвечать потребностям пары с ребенком, которая регулярно приглашает гостей.
- Локация: Москва
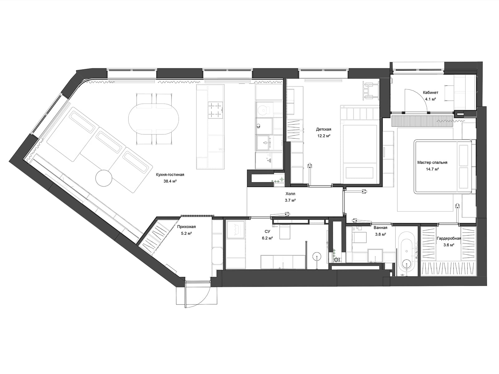
- Площадь: 92 м²
- Автор: студия A&ES
- Фото: Максим Максимов
- Стиль: Анна Бабенко, Марьям Кокурхаева
Главным недостатком квартиры было сложное планировочное решение от застройщика — к трапециевидной форме присоединялись шахта с пилоном прямо в середине помещения. Крупный конструктивный элемент дизайнеры вписали в зону отдыха, обыграв зеркалом и нестандартным гарнитуром. В кухню-гостиную выходили сразу три окна, возле каждого из которых расположились мебельные группы — модульный диван, раскладной обеденный стол и отделенное трехметровым островом место для готовки. Главным акцентом стал фартук, в котором чередуются открытое и закрытое хранение. С двух сторон эту композицию обрамляют высокие секции с техникой. Также в остров встроена плита с незаметной вытяжкой, интегрированной в покрашенный потолок. Геометрия прихожей повторяет очертания квартиры — сюда добавили два шкафа и светопроницаемую раздвижную перегородку. Мастер-спальня выдержана в мягкой палитре, подчеркивающей постель с текстильным изголовьем и настенной панелью. Комбинация шпона и декоративной штукатурки создает ритм и глубину, отсылая к природным текстурам. Центром притяжения детской оказалась двухэтажная кровать с хранением. Стену за ней украсила роспись художника, выполненная по пожеланиям маленького хозяина комнаты. В ванной тоже появляется собственная доминанта — монолитная раковина-пьедестал на фоне фактурной штукатурки под камень. Асимметричное зеркало в виде капли с плавными линиями добавляет объема рельефному покрытию.

















Источник: design-mate.ru