
Заказчики этого проекта — супруги, которые ведут спокойный и уединенный образ жизни. Они долгое время не жили в этой квартире, и дизайнерам Poisk Bureau предстояло обновить существующий интерьер без кардинальной перепланировки. Изначально клиенты не хотели отходить от общей стилистики оформления, но после знакомства с дизайн-проектом изменили свое мнение.
- Локация: Москва
- Площадь: 141 м²
- Авторы: Poisk Bureau, Наталия Назарова, Анастасия Тупикова, Ольга Черкасова
- Фото: Антон Бржозовский
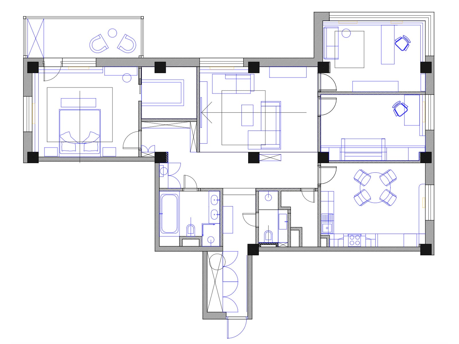
Планировочное решение по желанию заказчиков осталось прежним, но дизайнеры изменили функции некоторых зон. Например, бывшая детская превратилась в рабочий кабинет, так как дочь клиентов уже живет отдельно. Глобальная переделка коснулась только санузлов: в них обновили даже расстановку сантехнических приборов. Ключевым изъяном квартиры был недостаток естественного света, особенно заметный в гостиной и прихожей. Для этих помещений команда выбрала светлые тона отделки: их подчеркивает грамотная система искусственного освещения. Настенные и подвесные бра выступают выразительными акцентами, не только дополняя стилистику оформления, но и формируя его обновленный облик. Ощущение глубины интерьеру придают насыщенные контрастные оттенки и микс разных по фактуре материалов. Гладкие стены, шпон с активным рисунком и декоративный текстиль подчеркнули геометричность общественного пространства. Существующую мебель частично удалось сохранить за счет небольшого преображения: дизайнеры перекрасили старые фасады и добавили лаконичную черную фурнитуру. Тот же прием использовали в кухонном гарнитуре: благодаря замене фартука он обрел совсем другой характер. Некоторые предметы команда реставрировала прямо на объекте, а другие отвозила на производство. Сложным этапом оказался процесс подъема и монтажа широкоформатной плитки в душевой, но в результате получилась эффектная бесшовная поверхность.

















Источник: design-mate.ru