
В рамках этого проекта дизайнерам предстояло создать атмосферу «тихой роскоши», которая откликнется заказчикам — утонченным людям, увлеченным искусством. Хозяйка дома работает в индустрии красоты, поэтому команда также постаралась отразить ее внутренний мир и выделить пространство для вечеринок. Особая роль досталась кухне-гостиной, где владельцы смогут принимать гостей и отдыхать сами. Оформление должно было с первого взгляда транслировать сдержанность и интеллигентность.
- Локация: Москва
- Площадь: 270 м²
- Автор: студия Nashe Interiors
- Фото: Ольга Шангина
- Стиль: Диана Ремизова
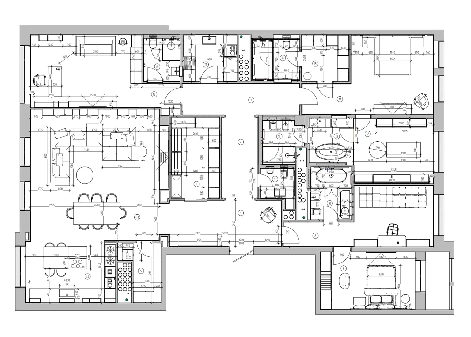
Так как пространство оказалось довольно большим, в нем удалось быстро создать планировку, комфортную для проживания семьи с ребенком. Уже во входной группе появляется кресло Minotti со столиком Flou, а за раздвижными зеркальными перегородками скрывается вместительная гардеробная. Клиенты проводят много времени на работе, поэтому их ключевым пожеланием были обеденные зоны для повседневных трапез в разных сценариях. Под завтраки с семьей предусмотрен остров с баром, а под ужины с друзьями — длинный стол Lago. Его отличает латунное подстолье, которое перекликается с формой стульев Poliform. Центром притяжения в гостиной выступает глубокий диван Minotti в насыщенном зеленом оттенке — он подсказал будущую цветовую схему проекта. Подчеркнуть сдержанную природную палитру в других помещениях призваны акценты из натуральной латуни и дерева. Панели получились особенно эффектными — молдинги на них повторяют геометрию молдингов на стенах, отданных под покраску. Это не единственные изделия, выполненные на заказ: все предметы для кухни и детской изготовлены на столярном производстве. Команда студии Nashe Interiors детально продумала гарнитур и наполнение для максимального удобства. Необычным здесь оказалось оформление выводов электрики: дизайнеры использовали скрытые рамки для розеток и выключателей. Чтобы они выглядели незаметно, еще на этапе строительства в стены встраивали специальные приборы. Далее в стеновых панелях подрядчики сделали ложи для держателей iPad. Анастасия Шевченко уделила особое внимание детскому блоку. Он разделен на спальню с рабочим местом и отдельную игровую для отдыха и вечеринок. В санузле для дочки заказчиков установили ванну. За купальной зоной уложена мозаика Porcelanosa в золотистом цвете.





















Источник: design-mate.ru