
В основу обновления интерьера этой квартиры в здании 1905 года постройки легло уважение к историческим элементам и аутентичному характеру объекта. Атмосферу тихого зеленого дворика с мягкими природными оттенками дизайнер решила перенести в дом: салатовые, селадоновые, молочные и терракотовые тона формируют спокойную палитру. Главным украшением проекта Мария Зайцева сделала оригинальную кирпичную кладку — ее зачистили и покрасили в цвет потолка.
- Локация: Минск
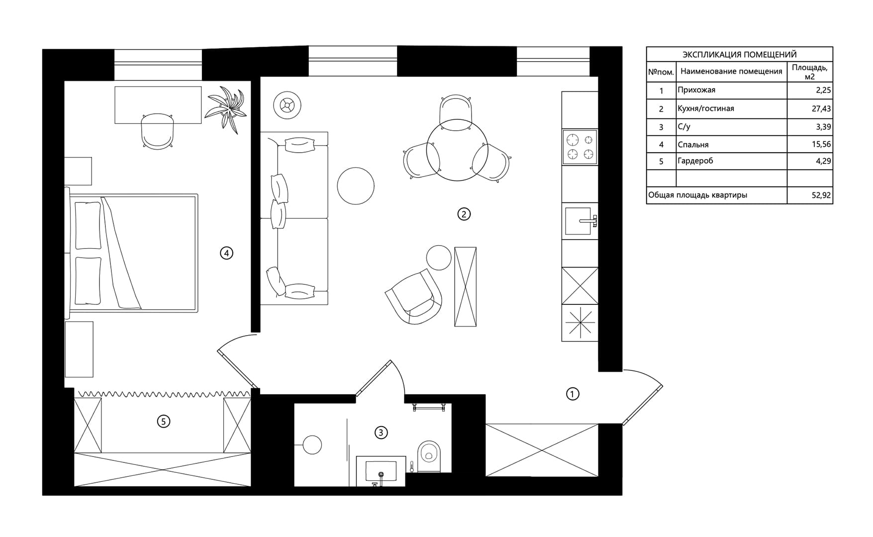
- Площадь: 53 м²
- Автор: Мария Зайцева
- Фото: Виталина Ворошкевич
Без перепланировки было не обойтись: команда объединила кухню и гостиную в большое общественное пространство с двумя окнами, а также сделала из пары санузлов один. Потолок и стены дизайнер предложила выкрасить в единый цвет, чтобы стереть линию стыка и привнести в оформление целостности. Окна и порталы обрамили с особым вниманием, подчеркнув кирпич и замаскировав радиаторы отопления шпонированными панелями. В качестве напольного покрытия был выбран паркет Tarwood с необычной диагональной укладкой английской елочкой. Фактура натурального дерева продолжается на фасадах кухонного гарнитура. Выделить мягкий ореховый оттенок призвана зеленая плитка WOW на фартуке — она перекликается с обивкой стульев и дивана Mexо. Отделить элегантную обеденную группу со светильником Formakami по дизайну Хайме Айона от зоны отдыха помог изящный стеллаж для декора. Как и остальная корпусная мебель, он был изготовлен на заказ по авторским эскизам. По вечерам лучи заходящего солнца проникают сквозь жалюзи и приумножаются, освещая комнаты. Отсылки к Азии также заметны в спальне: на панно за изголовьем кровати изображена гора в Японских Альпах, с которой открывается панорамный вид на длинный горный хребет. На противоположной стене разместилась картина Андрея Белова «Полдень». Пастельные краски подчеркивают прикроватные светильники Vibia, настольная лампа Davide Groppi и подвес &Tradition.
















Источник: design-mate.ru