
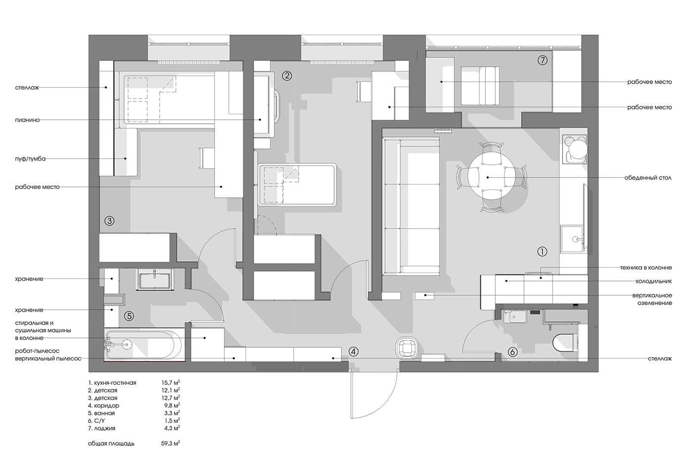
Заказчицей этого проекта выступила сама Юлия Комиссарова, поэтому интерьер стал точным отражением характера ее семьи. Ключевой сложностью была небольшая площадь, на которой предстояло разместить две детские спальни, кухню-гостиную и полноценное рабочее место. Создавать визуальную концепцию «для себя» оказалось даже проще, чем работать с пожеланиями клиентов — будущие функциональные зоны и визуальные решения были понятны еще на старте.
- Локация: Санкт-Петербург
- Площадь: 60 м²
- Автор: Юлия Комиссарова
- Фото: Александра Дубова
- Стиль: Ольга Раевская
Объект, с которым предстояло работать дизайнеру, был непростым: полет фантазии ограничивали метраж и несущая стена. Из-за них единственным доступным преобразованием квартиры оказалось увеличение кухни-гостиной. Одним из необычных решений этого проекта стала колористическая палитра: темные оттенки создают мягкую обволакивающую атмосферу, которую оживляют редкие вкрапления акцентных цветов. Уютное ощущение «пещеры» визуально размывает границы помещений. Чтобы «приподнять» потолки, Юлия Комиссарова, наоборот, покрыла их белой декоративной штукатуркой. Сдержанная гамма отделки точно отражает темперамент домочадцев — спокойных интровертов с творческими хобби. В квартире команда даже нашла уголок для большой библиотеки и комфортного хранения бытовой техники. Так, пылесосы, стиральная и сушильная машины теперь скрываются за мебельными фасадами в коридоре. От верхних секций кухни хозяйка дома уверенно отказалась — на их месте появился телевизор с широкой диагональю. Он «растворяется» на фоне черного глянцевого фартука. Ярких светильников здесь практически не найти: их заменили диммируемые подсветки, которые позволяют менять настроение комнат в любое время дня. Оригинальной деталью оформления стали элементы вертикального озеленения в специальных нишах.















Источник: design-mate.ru