
Клиентами студии Alexander Tischler в рамках этого проекта стали супруги с сыном-подростком. Они попросили дизайнеров разработать обволакивающий темный интерьер, в котором все члены семьи смогут качественно отдыхать после насыщенных будней. Другим важным пожеланием было создание удобных хозблоков и пространств для совместного досуга.
- Локация: Москва
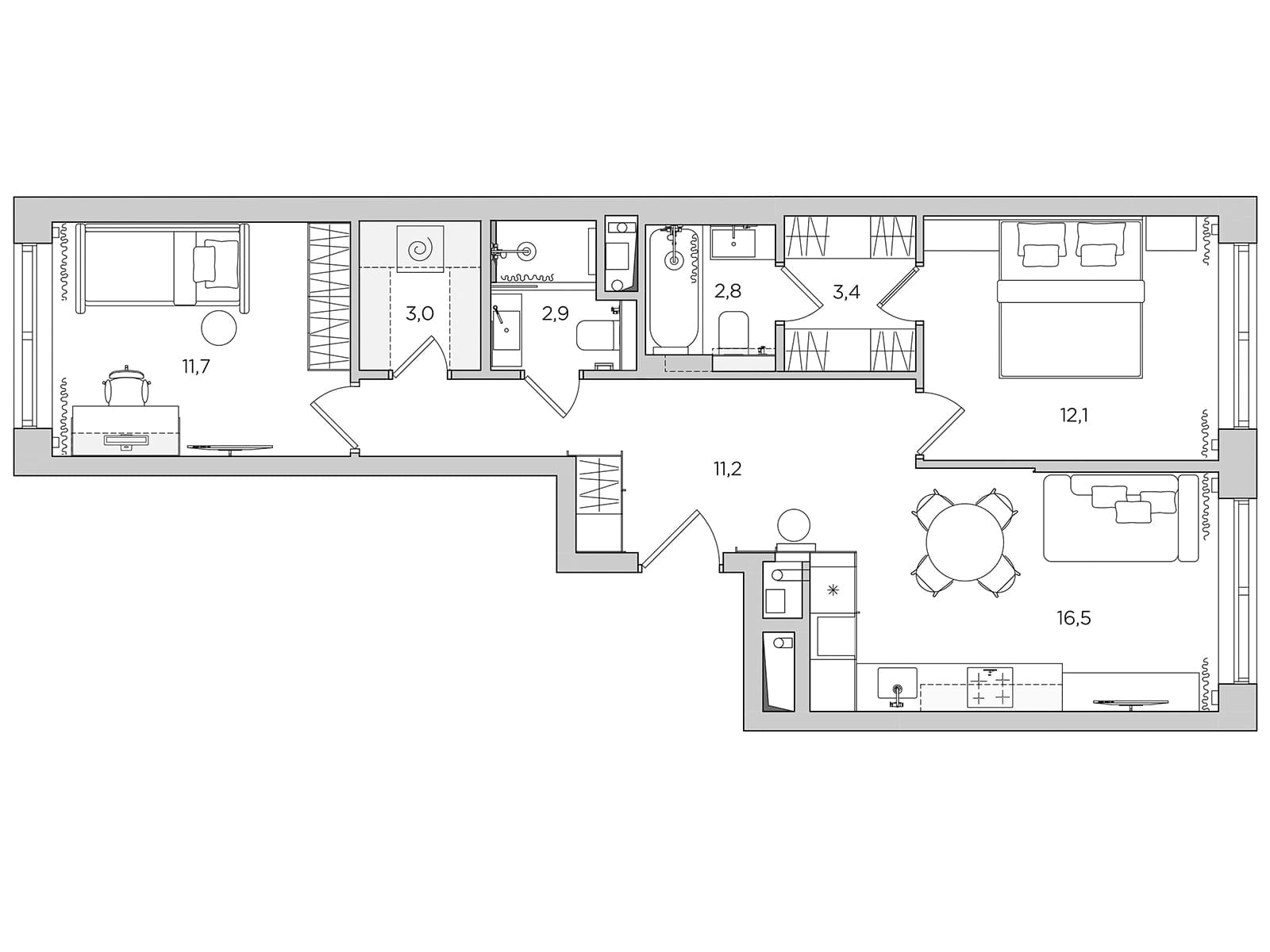
- Площадь: 64 м²
- Авторы: Alexander Tischler, Карен Карапетян, Татьяна Земерова, Константин Прохоров
- Фото: Настасья Корбут
- Стиль: Вера Минченкова
Чтобы эффективно использовать ограниченный метраж объекта, дизайнеры провели перепланировку. Они выделили прачечную и визуально расширили кухню-гостиную благодаря присоединению прихожей. Даже в спальне родителей появилась небольшая гардеробная с мужской и женской половинами. Особой гордостью команды в этом проекте стала грамотно составленная смета: изначальная стоимость ремонта не изменилась к концу реализации. Каждое помещение отличают высокие окна в пол, поэтому требовалось выбрать необычные отопительные решетки. После теплового расчета команда нашла для каждой комнаты по два вертикальных радиатора, чтобы их можно было замаскировать шторами. Сдержанная цветовая гамма с бежевыми оттенками и активной текстурой дерева привнесла в интерьер ощущение воздуха. Акцентной поверхностью в гостиной выступила темная стена, покрытая широкоформатным искусственным камнем бренда Ariostea. С ней сливается крупная графичная мебель, от половины секций кухонного гарнитура до ТВ-тумбы из шпона дуба. Эффектной деталью оформления оказалось хаотичное расположение светильников напротив входной двери и в детской. Вместо картин и арт-объектов дизайнеры использовали встроенные гипсовые лампы, чтобы придать стенам дополнительный объем. Почти вся мебель здесь выполнена на заказ, в том числе кровать в мастер-спальне. За счет асимметричного изголовья и углубленного основания кажется, будто зона оторвана от пола.

















Источник: design-mate.ru