
Обволакивающий интерьер этой квартиры дизайнеры студии A&ES создавали для дружной семьи с ребенком и котом. Супруги были уверены в своих пожеланиях: им хотелось получить теплое и функциональное оформление, подчеркивающее ощущение воздуха. Елизавета Райгородская и Александр Плутяков отдали предпочтение своим любимым природным материалам, которые выделяются среди темных оттенков.
- Локация: Москва
- Площадь: 80 м²
- Автор: A&ES
- Фото: Максим Максимов
- Стиль: Анна Бабенко
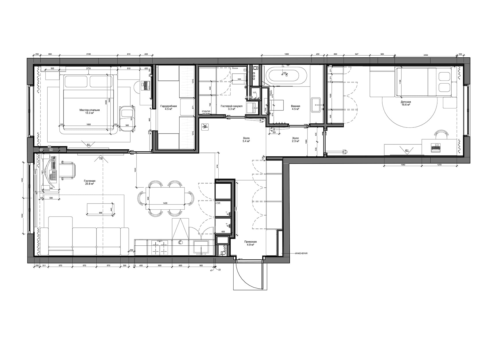
Планировку практически не пришлось менять — дизайнеры только перенесли вход в спальню, чтобы добавить гардеробную. Из-за особенностей планировки впустить в прихожую естественный свет оказалось невозможным. Компенсировать этот недостаток призвано зеркало между гостиной и входной группой — оно отражает дневной свет, наполняя пространство сиянием. Наполнение общественной зоны Елизавета Райгородская и Александр Плутяков сделали динамичным, чтобы хозяевам были доступны разные сценарии использования. Например, диван здесь состоит из трех секций, которые могут трансформироваться в полноценное спальное место. Обивку из ткани «антикоготь» подбирали под цвет шерсти кота — даже спустя год после заселения она выглядит как новая. Мягкий переход в кухню появился благодаря гармоничному сочетанию отделочных материалов. Так, керамогранит с фартука гарнитура плавно переходит на одну из стен, а напольное покрытие из инженерной доски объединяет их без видимой границы. Чтобы избежать монотонности, искусственный камень разрезали на фрагменты разной ширины: получилась легкая игра ритмов и фактур. Обе кровати в проекте изготовлены на заказ. Теперь постель в детской можно сложить в отдельный диванчик на время прихода гостей. Изголовье кровати в мастер-спальне сначала сделали цельным полотном под дерево, но оно смотрелось слишком искусственно. В результате его дополнили профильные деления, добавившие фактурности. Необычным экспериментом стала большая раковина в строительном исполнении. Для нее нужно было продумать металлоконструкцию, точно рассчитать размеры и добиться идеальной стыковки с ванной.













Источник: design-mate.ru